基本情報
| 所在地 | 【高松オフィス】高松市六条町647-1 |
|---|---|
| 営業時間 | 9:30~18:30 |
| エリア | 香川県内全域(離島を除く) |
| 電話番号 | 【高松オフィス】087-884-7111 |
|---|---|
| 定休日 | 水曜日 |
| 設立 | 1972年 |
| 従業員数 | 51名 |
| URL | https://rotary-h.com |
【丸亀オフィス】
丸亀市金倉町1519-1 0877-89-8080
モデルハウス

立体的な空間の広がりを愉しむモダンな平屋
ダークカラーをベースにした、シャープなシルエットの外観。生活の効率を高める回遊動線を設け、使いやすさとデザイン性のバランスが取れた平屋です。
| 所在地 | 高松市下田井町 |
|---|---|
| 電話番号 | 087-884-7111 |
| 営業時間 | 10:00〜18:30 |
|---|---|
| 定休日 | 水曜日 |
得意なデザイン
建築士とつくる“あなたらしい家”
経験豊富な建築士がお客さまに向き合い、対話を重ね、輝く暮らしをつくります。ハウスメーカーの安心感、工務店の柔軟性、設計事務所のデザイン性のすべてを兼ね備えた家づくり。初回の打ち合わせから理想の暮らしを盛り込んだ費用を提示してくれるので安心して計画を進められます。

バーチャル映像で確認する家づくり
建築士が17名ほど在籍する「ロータリーハウス」。ヒアリングから引き渡しまで建築士が一貫してサポートしてくれます。バーチャル映像を活用した打ち合わせでデザインと構造の両面から提案。一つ一つ丁寧に確認しながら理想の住まいをカタチにします。

コーディネーターが導く調和のとれた住空間
天井まで届くハイドアの縦の広がり、勾配天井による開放感・・・。床・壁・建具・照明・アクセントクロス・カーテンまで、専任コーディネーターがトータルでバランスを整えてくれます。素材の質感と色彩が調和した、上質で洗練されたインテリア空間を実現します。

性能・素材へのこだわり
長期優良住宅、GX ZEH+基準の住まい
耐震性・断熱性・耐久性に配慮した長期優良住宅を標準仕様とし、さらに未来基準であるGX ZEH+の基準もクリア。地震に強く、長持ちし、メンテナンスしやすく、省エネ性が高い。将来にわたって安心して住み続けられる資産価値の高い住まいを提供します。

寒冷地並みの断熱性能を香川で実現
HEAT20 G2クラスを標準仕様とし、完工物件の平均UA値0.44を達成。香川県でありながら青森・岩手・秋田の寒冷地ZEH水準に相当する断熱性能です。トリプルガラス断熱サッシを全窓に採用し、夏涼しく冬暖かい快適な室温を保ちながら、光熱費を大幅に削減します。

許容応力度計算と制震で地震に強い家
許容応力度計算で、基礎・床・屋根・構造材・接合部まで精密に検証。制震ブレース「ブレースリーKⅡ型」を標準装備し、地震エネルギーを熱に変換してダメージを最小限に抑えます。繰り返しの地震にも強く、太陽光発電6kWと蓄電池で停電時も安心して暮らせる住まいです。

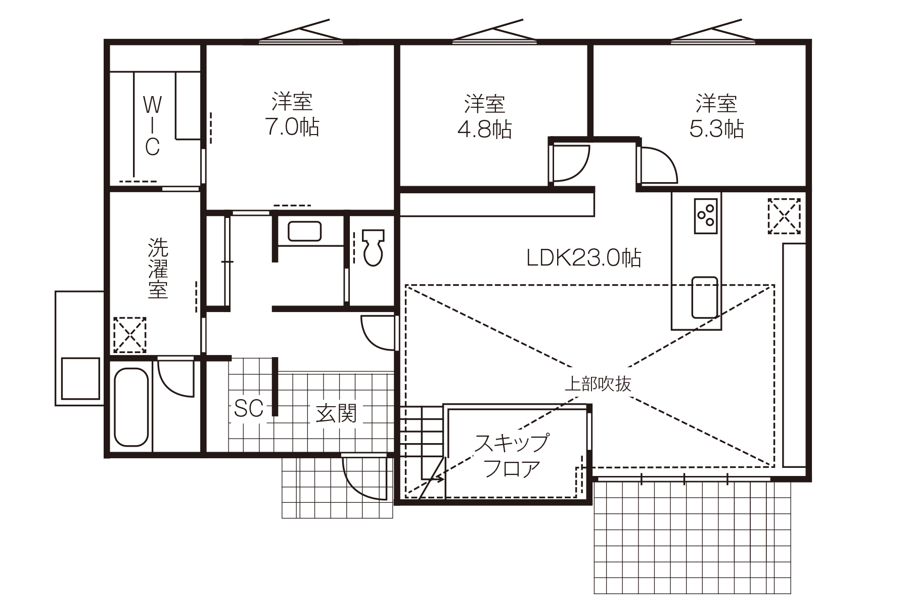
代表的な間取り・プランニング
空間の広がりと動線を考えた平屋
構造計算を行っているから実現できるスキップフロアのある大空間のLDKは南面からたっぷりと光を取り込めます。家族とのコミュニケーションを取れる洋室の配置、寝室付近に水回りをまとめることで毎日の支度や家事をスムーズに行えます。

家族が集まる、リビングを暮らしの中心にした間取り
勾配天井に梁を見せた木目のあたたかな雰囲気を感じられるLDK。居室や水回りへの動線上に扉を設けず、空間の隔たりを減らすことで、エアコン1台でまかなえる省エネな空間づくりが可能。家全体に自然なつながりを感じさせる間取りです。

IETOリポーターからのメッセージ
GX ZEH+の基準もクリアした高性能住宅でありながら、デザイン性も高いロータリーハウスさん。いつも高松市六条町のおしゃれな事務所で楽しく打ち合わせをさせていただいています。担当の方をはじめ、スタッフみなさんオシャレで話やすい雰囲気なので、仕事と関係のない話をしてしまい、ついつい長居をしてしまいます!リアルサイズのモデルハウスを常に公開されているので、等身大の住まいの魅力をしっかり感じることができます。ここ最近注目されている、平屋のモデルハウスもありますので、気軽に足を運び、その魅力を体感してみてはいかがでしょうか。













