これはマネしたい!暮らしやすい平屋の「理想の間取り」実例26選

ワンフロアで生活が完結し、幅広い世代に人気の平屋。しかし、すべての部屋が同じ階にあるからこそ、生活動線や収納といった「間取りの工夫」が住み心地を大きく左右します。
そこで本記事では、住宅情報メディア「IETO」が厳選した、マネしたくなる平屋のおすすめ間取り実例26選を一挙にご紹介します!
豊富な実例のなかから、ぜひあなたにとっての「理想の間取り」「最強の間取り」を見つけて、家づくりの参考にしてくださいね。
雑誌『瀬戸内民家』を無料プレゼント

IETOで資料請求をすると、平屋の美しい実例が詰まった雑誌『瀬戸内民家(平屋)』や『家づくり計画ノート』を無料でプレゼント中です!
> 資料請求して平屋の特典をもらう(無料)
平屋の間取りで失敗しない!押さえておきたい3つのポイント
実例を見ていく前に、まずは失敗しないための3つの基本を押さえておきましょう。
①スムーズな家事動線・生活動線の確保
移動が平面で完結する平屋では、動線の設計が重要です。水回りを一箇所にまとめたり、ぐるりと回れる「回遊動線」を取り入れたりすることで、毎日の家事効率が劇的にアップします。朝の忙しい時間に、家族の生活動線とぶつからない工夫も大切です。
②採光・風通しとプライバシーの両立
平屋の中心部は光や風が届きにくいため、「勾配天井」や「高窓」の活用が効果的です。また、すべてが1階にあるため外からの視線対策も必須。「コの字型」にして中庭を設けるなど、明るさとプライバシーを両立させる設計を取り入れましょう。
③暮らしに合わせた収納スペースの適正配置
床面積が限られやすい平屋では、生活シーンに合わせた「適材適所の収納」がスッキリ暮らすコツです。玄関の「土間収納」や、キッチン横の「パントリー」、衣類を一括管理する「ファミリークローゼット」など、必要な場所に必要なサイズを計画しましょう。
【動線重視】家事効率がぐっと上がる平屋の間取り実例
毎日の家事負担を減らすには「動線」が鍵。水回りをぐるりと回れる回遊動線や、キッチンから各部屋へスムーズに繋がる間取りなど、無駄な動きをなくして効率よく暮らせる実例をご紹介します。
雑誌『瀬戸内民家』を無料プレゼント

IETOで資料請求をすると、平屋の美しい実例が詰まった雑誌『瀬戸内民家(平屋)』や『家づくり計画ノート』を無料でプレゼント中です!
【実例1】LDKを中心に配した家族の絆を深める平屋




家族が集まるLDKから廊下を介さず各部屋をつなげる設計です 。家事効率にも配慮し、キッチンを中心に、洗面室、ランドリールームへの回遊動線でスムーズに移動できます 。
・家族構成:ご夫婦
・建物面積:105.58㎡(31.93坪)
・施工:イチマルホーム
>平屋特集誌『瀬戸内民家』がもらえる!一括資料請求はこちら(無料)
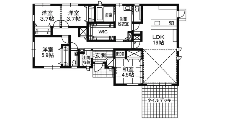
【実例2】部屋への移動がスムーズで効率よく家事ができる家




玄関からは洗面脱衣室とLDKへスムーズに移動できます。リビングからつながる和室や、家族の様子をいつも見守れるキッチンを中心にした回遊動線もポイントです。子ども部屋は、将来2部屋に仕切れるようになっています。
・家族構成:ご夫婦、お子さま2人
・建物面積:102.38㎡(30.96 坪)
・施工:イチマルホーム
>平屋特集誌『瀬戸内民家』がもらえる!一括資料請求はこちら(無料)
【実例3】共働き夫婦の暮らしに配慮した空間配置と動線




勾配天井が目を引く開放感たっぷりのLDKに加え、家事時間を短縮できるよう、キッチンから洗面室、クローゼットまで回遊できる動線を確保しました。共働きのご夫婦が、毎日を快適に過ごせるよう配慮された設計です。
・家族構成:ご夫婦、お子さま2人
・建物面積:130.01㎡(39.32坪)
・施工:マツミ住宅
>平屋特集誌『瀬戸内民家』がもらえる!一括資料請求はこちら(無料)
【実例4】家事動線にこだわったロフトのある平屋




オープン階段の先にあるロフト部分を、書斎として活用した間取りです。家事の動線にもこだわり、ランドリースペースには便利な収納を設けました。さらに間接照明を取り入れることで、落ち着きのある大人な雰囲気も演出しています。
・家族構成:ご夫婦、お子さま1人
・建物面積:121.31㎡(36.69坪)
・施工:倉敷ハウジング
>平屋特集誌『瀬戸内民家』がもらえる!一括資料請求はこちら(無料)
【実例5】LDKを介して各部屋につながるL字型プランニング




玄関から各部屋へ向かう際に必ずLDKを通る設計で、帰宅した家族の様子を自然に見守ることができます。キッチンから浴室・洗面室までは一直線の動線になっており、その途中にファミリークローゼットを配置。家事の効率を高めつつ、家族とのつながりも大切にした間取りです。
・家族構成:ご夫婦、お子さま2人
・建物面積:82.57㎡(24.97坪)
・施工:森本工務店
>平屋特集誌『瀬戸内民家』がもらえる!一括資料請求はこちら(無料)
【実例6】機能性を重視した平屋ならではのゾーニング




玄関から真っすぐに土間が延びる印象的な住まいです。東側にLDK、西側に個室を配置し、その間を回廊状の動線がつなぐ、平屋ならではの機能的なゾーニングを実現しました。南面の中央には、物干し場としても活用できるウッドデッキを設けています。
・家族構成:ご夫婦、お子さま2人
・建物面積:108.75㎡(32.89坪)
・施工:セントテ
>平屋特集誌『瀬戸内民家』がもらえる!一括資料請求はこちら(無料)
【空間活用・アイデア】限られた空間を有効活用する平屋の間取り実例
限られた面積でも広々と快適に。リビングと土間を繋げる大胆なアイデアや、来客とプライベートを分ける賢いゾーニングなど、ワンフロアの空間を最大限に活かす工夫が詰まった実例をご紹介します。
雑誌『瀬戸内民家』を無料プレゼント

IETOで資料請求をすると、平屋の美しい実例が詰まった雑誌『瀬戸内民家(平屋)』や『家づくり計画ノート』を無料でプレゼント中です!
【実例7】暮らしやすいシンプルな空間構成




パブリック(共有)とプライベート(個室)の2つのゾーンに分けた構成です。キッチンや水回り、玄関土間へと抜けるパントリーを一箇所に集約することで、移動の負担を抑え、スムーズに片付けができる機能的な家事動線に仕上げました。
・家族構成:ご夫婦、お子さま2人
・建物面積:121.77㎡(36.83坪)
・施工:押田建設
>平屋特集誌『瀬戸内民家』がもらえる!一括資料請求はこちら(無料)
【実例8】公私を分けた2つのボリュームで構成する平屋




玄関を中心に、寝室や子ども部屋などの「プライベートスペース」と、LDKや和室などの「パブリックスペース」を明確にゾーニングしました。玄関から直進した場所に洗面室を配置することで、帰宅後すぐに手洗いができ、室内を清潔に保てるよう工夫されています。
・家族構成:ご夫婦、お子さま2人
・建物面積:114.56㎡(34.65坪)
・施工:イチマルホーム
>平屋特集誌『瀬戸内民家』がもらえる!一括資料請求はこちら(無料)
【実例9】空間ごとの対比を楽しむ、2つの個性が調和した家




家の中心に玄関を配置し、水回りと個室を左右に振り分けることで、家族が集うLDKを大胆に広げたプランです。土間収納横に設けた便利な手洗い台や、スタディーコーナーなど、家族を想う優しさが細部にまで込められています。
・家族構成:ご夫婦、お子さま1人
・建物面積:103.71㎡(31.37坪)
・施工:倉敷ハウジング
>平屋特集誌『瀬戸内民家』がもらえる!一括資料請求はこちら(無料)
【実例10】限られた空間を有効活用した広々暮らせる間取り




廊下を設けず、LDKを中心にすべての部屋がつながる効率的な間取りです。LDKの南側にある玄関には、掃き出し窓の代わりにガラス戸を採用しました。さらに、LDKの建具を半透明にすることで、外からの視線を遮りプライバシーを守りつつ、室内の奥まで心地よい光が届くよう工夫されています。
・家族構成:ご夫婦、お子さま1人
・建物面積:93.56㎡(28.30坪)
・施工:セントテ
平屋特集誌『瀬戸内民家』がもらえる!一括資料請求はこちら(無料)
【実例11】DKを土間でつなぐ大胆なアイデアを反映した家




プランの中で特に目を引くのが、土間でつながるダイニング・キッチン(DK)です。お庭でバーベキューを楽しむ際も、靴を脱ぎ履きせずにキッチンへ出入りできるため、準備や片付けの手間が大幅に軽減されます。アウトドアやスポーツをアクティブに楽しむご家族の理想を叶えた、こだわりの設計です。
・家族構成:ご夫婦、お子さま3人
・建物面積:103.09㎡(31.18坪)
・施工:ジオ・プラン
>平屋特集誌『瀬戸内民家』がもらえる!一括資料請求はこちら(無料)
【中庭・開放感】光と自然を取り込む心地よい平屋の間取り実例
平屋ならではの「外との繋がり」を楽しむ設計。周囲の視線を遮りつつ光を届ける中庭や、景色を美しく取り込む工夫など、開放感あふれる心地よい間取り実例をご紹介します。
【実例12】絶景を生かした身も心も穏やかに暮らせる設計




豊かな自然と眺望に恵まれた絶好のロケーションを存分に生かした、東西にゆったりと広がる平屋らしい間取りです。パッシブ設計を採用することで、日差しや風の通り道が緻密に計算されており、一年中を通して心地よく、快適な暮らしをかなえます。
・家族構成:ご夫婦、お子さま2人
・建物面積:128.35㎡(38.82坪)
・施工:近藤建設興業
>平屋特集誌『瀬戸内民家』がもらえる!一括資料請求はこちら(無料)
【実例13】のびやかに過ごせる自由度の高い間取り




玄関のすぐ先に配置した脱衣室や洗面コーナーに加え、土間収納からキッチンへ直接つながる動線を確保しました。リビングを介して水回りへ直行できる「回遊動線」や広々としたLDKなど、無駄のないコンパクトな動きで毎日を快適に過ごせる設計です。
・家族構成:ご夫婦、お子さま2人
・建物面積:122.14㎡(36.94坪)
・施工:倉敷ハウジング
>平屋特集誌『瀬戸内民家』がもらえる!一括資料請求はこちら(無料)
【実例14】家族の気配やつながりを程よく感じられる間取り




LDKから寝室や子ども部屋を離して配置することで、家族それぞれが自分たちの時間を穏やかに過ごせるよう設計しました。また、家事のしやすさにもこだわり、キッチンから洗面室、浴室、パントリーをスムーズに回れる「回遊動線」を取り入れています。
・家族構成:ご夫婦、お子さま1人
・建物面積:132.25㎡(40.00坪)
・施工:森本工務店
>平屋特集誌『瀬戸内民家』がもらえる!一括資料請求はこちら(無料)
【実例15】2つの中庭と畳リビングを中心に広がる家




畳リビングを中心に、四方に寝室や水回りをバランスよく配置しました。大量のマンガを収納できる図書室も備わっており、趣味の時間を存分に楽しめます。あえて南側に大きな窓を設けず、東西それぞれに配置した中庭から柔らかな光を採り入れる、プライバシーと明るさを両立させた設計です。
・家族構成:ご夫婦、お子さま2人
・建物面積:127.52㎡(38.57坪)
・施工:セントテ
>平屋特集誌『瀬戸内民家』がもらえる!一括資料請求はこちら(無料)
【実例16】学校のような内装の、心地よい風に吹かれる平屋




まるで学校の校舎を思わせるような、遊び心あふれるユニークな設計が魅力の平屋です。窓を開けて開放的に暮らせるオープンな空間は移動もしやすく、廊下にウォークインクローゼットを配置するなど、限られたスペースを有効活用した無駄のない動線を実現しています。
・家族構成:ご夫婦、お子さま3人、孫2人
・建物面積:132.91㎡(40.20坪)
・施工:樹工舎
平屋特集誌『瀬戸内民家』がもらえる!一括資料請求はこちら(無料)
【実例17】家事動線にもこだわった、広く明るい平屋の住まい




広々とした中庭を囲む、贅沢な「ロの字型」の平屋です。中庭の対面にLDKと水回りを据え、玄関の左右にそれぞれの居室をバランスよく配置しました。家族一人ひとりが程よい距離感を保ちながら、どの部屋にいても光や風を感じて快適に過ごせるよう工夫されています。
・家族構成:ご夫婦、お子さま2人
・建物面積:199.75㎡(60.42坪)
・施工:タニグチ
>平屋特集誌『瀬戸内民家』がもらえる!一括資料請求はこちら(無料)
【ライフスタイル・広さ別】コンパクトから古民家リノベ・二世帯まで
夫婦ふたりに丁度いい20坪台のコンパクトな家から、趣ある古民家再生、多世代が暮らす二世帯住宅まで。住む人の数や暮らし方にしっかりと寄り添った、多彩な平屋の実例をご紹介します。
雑誌『瀬戸内民家』を無料プレゼント

IETOで資料請求をすると、平屋の美しい実例が詰まった雑誌『瀬戸内民家(平屋)』や『家づくり計画ノート』を無料でプレゼント中です!
【実例18】一人暮らしにジャストサイズのミニマムな平屋




ひとり暮らしにちょうど良い、ジャストなサイズ感が魅力の平屋です。寝室には畳敷きの和室を採用し、トイレを横開きの引き戸にするなど、将来の使いやすさまで見据えた設計が特徴です。いつまでも心地よく、自分らしく暮らし続けられる工夫が随所に散りばめられています。
・家族構成:施主
・建物面積:46.16㎡(13.96坪)
・施工:建匠
>平屋特集誌『瀬戸内民家』がもらえる!一括資料請求はこちら(無料)
【実例19】夫婦が仲良く暮らすコンパクトで機能性の高い家




ご夫婦二人の暮らしを快適に満喫できる、コンパクトで無駄のない設計です。広々としたLDKとプライベートゾーンを分けることで、生活にメリハリが生まれるよう配慮しました。自然素材をふんだんに使用しており、住む人も家も末永く健やかに過ごせる住まいを実現しています。
・家族構成:ご夫婦
・建物面積:67.90㎡(20.53坪)
・施工:建匠
>平屋特集誌『瀬戸内民家』がもらえる!一括資料請求はこちら(無料)
【実例20】程よい距離感を生むことで家族の絆をずっと良好に




あえて廊下を設けることで、家族間のプライバシーを尊重し合える間取りを実現しました。トイレを主寝室側と子ども部屋側のそれぞれに配置するなど、親子が程よい距離感を保ちながら心地よく暮らせる工夫が詰まった平屋です。
・家族構成:ご夫婦、お子さま2人
・建物面積:125.45㎡(37.94坪)
・施工:建匠
>平屋特集誌『瀬戸内民家』がもらえる!一括資料請求はこちら(無料)
【実例21】ふたりで快適に暮らせるコンパクトなバリアフリー設計




将来の暮らしまで見据えた、安心感のあるプランニングです。できるだけ自力での生活を続けられるよう、寝室・トイレ・浴室を最短距離で配置し、手すりを使って移動できるバリアフリー仕様を採用しました。ヒノキをふんだんに使った清々しい室内環境も、心と身体に優しい魅力的なポイントです。
・家族構成:―
・建物面積:111.93㎡(33.85坪)
・施工:森本工務店
>平屋特集誌『瀬戸内民家』がもらえる!一括資料請求はこちら(無料)
【実例22】人もネコも気持ちよく暮らせるゆとりのある平屋




のどかな里山を見下ろす絶景を楽しみながら、人もネコも毎日を健やかに過ごせる空間を目指しました。すべての素材が土に還る「自然素材」にこだわり、家の中にいながら豊かな自然を身近に感じられる設計になっています。
・家族構成:ご夫婦
・建物面積:120.44㎡(36.43坪)
・施工:樹工舎
>平屋特集誌『瀬戸内民家』がもらえる!一括資料請求はこちら(無料)
【実例23】古民家をホテルライクな和の上質空間に再生




細かく区切られていたお部屋を見直し、未使用のスペースを活用することで、開放感あふれる広々とした間取りへと生まれ変わりました。欄間や竹細工といった美しい意匠を活かし、旧宅の面影を大切に残しているのも魅力です。さらに、耐震性も大幅に向上させており、歴史を感じながらも安心して長く暮らせる住まいを実現しました。
・家族構成:ご夫婦
・建物面積:145.60㎡(44.04坪)
・施工:うずくぼ工房
>平屋特集誌『瀬戸内民家』がもらえる!一括資料請求はこちら(無料)
【実例24】築100年を超える古民家をバリアフリーの二世帯住宅へ




築100年を超える母屋(おもや)と離れを、美しく再生させた実例です。これまで床の高さが異なっていた母屋と離れをフラットにつなぎ、スムーズに行き来できるように改修しました。伝統的な意匠を大切に残しながら、間取りを現代のライフスタイルに合わせて見直すことで、ご家族みんなが心地よく過ごせる二世帯住宅へと生まれ変わりました。
・家族構成:ご夫婦、お子さま1人、ご両親
・建物面積:171.67㎡(51.93坪)
・施工:うずくぼ工房
>平屋特集誌『瀬戸内民家』がもらえる!一括資料請求はこちら(無料)
【実例25】快適な住まいとなって息を吹き返した江戸時代築の古民家




江戸時代に庄屋の邸宅として使われていた古民家を再生した、格式ある住まいです。伝統工法による複雑な構造を極力そのまま活かし、部材の一つひとつを見極めながら、丁寧に手作業で改修を行いました。伝統建築の趣を色濃く残しながら、現代の生活にフィットするモダンな居住空間へと生まれ変わっています。
・家族構成:ご夫婦
・建物面積:264.62㎡(80.04坪)
・施工:うずくぼ工房
>平屋特集誌『瀬戸内民家』がもらえる!一括資料請求はこちら(無料)
【実例26】ストレスフリーでゆったり過ごせる和モダンの平屋




ゆったりと流れる時間の中で、ご家族全員が心地よく過ごせるようにというご要望から、廊下の幅をゆとりを持って確保し、建具も大きめのサイズでオーダーしました。将来の暮らしまで見据え、家全体を段差のないバリアフリー設計にすることで、長く安心して暮らせる住まいを実現しています。
・家族構成:ご夫婦、お子さま1人
・建物面積:155.22㎡(46.95坪)
・施工:タニグチ
>平屋特集誌『瀬戸内民家』がもらえる!一括資料請求はこちら(無料)
理想の平屋を建てる!カタログ一括請求でアイデアを集めよう
26選の実例を通して、理想の平屋のイメージが少しずつ形になってきたのではないでしょうか?「こんな間取りにしたい」「この動線を真似したい」というアイデアが見つかったら、次は実際のカタログを取り寄せて、より具体的な検討を始めるのが成功への近道です。
雑誌『瀬戸内民家』を無料プレゼント

IETOでカタログ・資料請求していただいた方には、家づくりに役立つ雑誌『瀬戸内民家(平屋特集号)』や、家づくりの要望を整理できる『家づくり計画ノート』を無料で差し上げています。まずは資料を手に入れて、ご家族で「理想の暮らし」について話し合ってみることから始めてみませんか?










